GESELLSCHAFT FÜR IMMOBILIEN- UND FINANZIERUNGSVERMITTLUNG MBH COPYRIGHT 2012
GESELLSCHAFT FÜR IMMOBILIEN- UND FINANZIERUNGSVERMITTLUNG MBH COPYRIGHT 2012
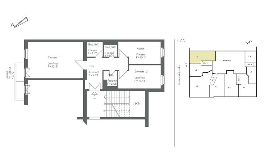
VH | 4.OG | 60QM
ECKDATEN
| ZIMMER | 2 |
| GRÖSSE | 60qm |
| LAGE | VH, 4.OG rechts |
| AUFZUG | Ja (Anbau 2014) |
| BALKON / TERASSE | Ja |
| AUSSTATTUNG | Renovierungsbedarf |
| PREIS PRO QM | 3.333€/qm |
| KAUFPREIS | 200.000€ zzgl. 7,14% Käufer-Provision inkl. MwSt. |
| EXTRA | BALKON, ABSTELLKAMMER |
WOHNUNGEN