GESELLSCHAFT FÜR IMMOBILIEN- UND FINANZIERUNGSVERMITTLUNG MBH COPYRIGHT 2012
GESELLSCHAFT FÜR IMMOBILIEN- UND FINANZIERUNGSVERMITTLUNG MBH COPYRIGHT 2012
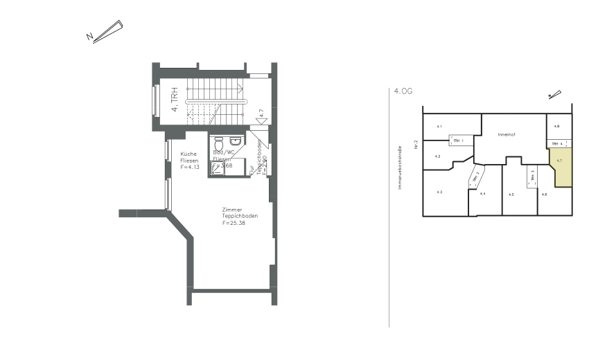
HH | 4.OG | 36.09QM
ECKDATEN
| ZIMMER | 1 |
| GRÖSSE | 36,09qm |
| LAGE | HH, 4.OG rechts |
| AUFZUG | Nein |
| BALKON / TERASSE | Nein |
| AUSSTATTUNG | Renoviert |
| PREIS PRO QM | 3.499€/qm |
| KAUFPREIS | 126.300€ zzgl. 7,14% Käufer-Provision inkl. MwSt. |
| EXTRA | NEUE DIELEN, RENOVIERT, BEZUGSFREI 31.12.13 |
WOHNUNGEN