GESELLSCHAFT FÜR IMMOBILIEN- UND FINANZIERUNGSVERMITTLUNG MBH COPYRIGHT 2012
GESELLSCHAFT FÜR IMMOBILIEN- UND FINANZIERUNGSVERMITTLUNG MBH COPYRIGHT 2012
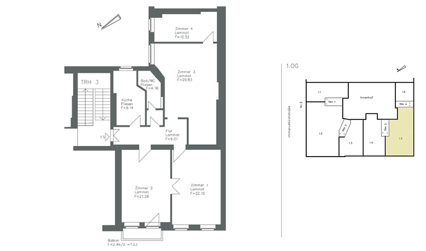
2.SFL | 1.OG | 107QM - RESERVIERT
ECKDATEN
| ZIMMER | 4 |
| GRÖSSE | 107qm |
| LAGE | 2.SFL, 1.OG links |
| AUFZUG | Ja (Anbau 2014) |
| BALKON / TERASSE | Ja |
| AUSSTATTUNG | Renovierungsbedarf |
| PREIS PRO QM | 3.000€/qm |
| KAUFPREIS | 321.000€ zzgl. 7,14% Käufer-Provision inkl. MwSt. |
| EXTRA | BALKON |
WOHNUNGEN